RGP745Y液動均壓放散閥
- 銷售:021-32051999
- 銷售:021-32050777
- 傳真:021-66099555
詳情介紹
- 產品介紹
- 服務承諾
- 訂貨流程
RGP745Y液動放散閥-均壓放散閥適用于高爐工程煤氣均壓放散系統,是一種密閉型閥門,RGP745Y液動放散閥-均壓放散閥采用液壓驅動,油壓10-20mpa,啟閉時閥≤5S,RGP745Y液動放散閥-均壓放散閥采用內開盤式和金屬密封和橡膠密封的雙重密封結構,幫密封可靠, 密封件表面堆焊合金,耐磨性好,故可用于臟煤氣及其它含粉塵氣體。
主要性能參數
公稱壓力 | 0.25PMa |
適用介質 | 煤氣 |
適用溫度 | ≤200℃ |
主要零件材料 | 鑄鋼 |
法蘭連接尺寸 | GB/T17241.6-1998 |
液壓 | 8.0MPa |

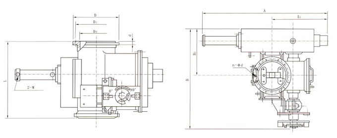
主要外形連接尺寸
DN | L | D0 | D | D1 | b | n-φd | A | A1 | B | B1 | Z-M | 質量 | 爐容 | 圖號 |
200 | 700 | 100 | 320 | 280 | 22 | 8-φ18 | 1100 | 540 | 1065 | 452 | M18×1.5 | 400 | 650 | |
250 | 760 | 150 | 375 | 335 | 24 | 12-φ18 | 1250 | 600 | 1120 | 480 | M18×1.5 | 550 | 750 | |
300 | 820 | 200 | 440 | 395 | 24 | 12-φ23 | 1400 | 600 | 1230 | 530 | M22×1.5 | 720 | 1000 | |
350 | 870 | 250 | 490 | 448 | 26 | 12-φ23 | 1596 | 730 | 1289 | 604 | M22×1.5 | 1046 | 1200 | DT890 |
400 | 920 | 300 | 540 | 492 | 26 | 16-φ23 | 1790 | 800 | 1365 | 690 | M27×2 | 1455 | 1500 | DT889 |
450 | 970 | 350 | 595 | 550 | 26 | 16-φ23 | 1941 | 880 | 1482 | 724 | M27×2 | 1611 | 1500-2500 | DT888 |
500 | 1020 | 400 | 645 | 600 | 28 | 20-φ23 | 2120 | 980 | 1550 | 800 | M27×2 | 1900 | 3204000 |
良好的品質、優良的服務 奇高為你創造更多價值!
“奇高閥門”的期望,不斷提升服務質量,精益求精,“真誠的服務”是“奇高”永恒的主題。“奇高”嚴格按照IS09001-2000 質量體系認證要求,質量嚴格把關, 責任到人,確保生產、銷售、服務的健康運行。加強與用戶溝通,竭誠為廣大客戶提供優良產品,貼心服務。特此我廠做出以下承諾:
產品標準:
產品嚴格按照中國GB、HG 標準和美國API等標準設計、制造、驗收。密封面硬度達到國家規定要求,寬度超過國家標準。
售前服務:
產品介紹,技術交流,非標產品設計,疑難解答。
售中服務:
守信合同,及時供貨,隨時保持與客戶聯系。 對特殊或復制的產品,我廠安排技術人員對用戶進行產品使用、故障排除
售后服務:
1、“奇高”牌產品品質期為自出廠起12個月,實行“三包”服務(包退、包換、保修)。
2、產品在使用中我廠定期組織技術、質檢人員進行訪問,征詢用戶對產品質量、 使用狀況、改進意見等方面的反饋, 以便進一步提高產品質量。
3、對用戶投訴質量問題,快速作出反應,售后服務人員在24-36小時(省外48小時)趕赴現場。
4、對售后服務,要求用戶填寫服務后的質量反饋信息表,并作出鑒定意見,以便提高奇高的服務質量。
1、客戶如對產品有特殊要求,須在訂貨合同中提供以下說明:
a、結構長度;
b、連接形式;
c、公稱直徑、全通徑、縮徑、管道尺寸;
d、運行介質及溫度、壓力范圍;
e、試驗、檢驗標準及其他要求
2、本廠可根據客戶特定要求配置各類驅動裝置。
3、如由客戶提供確定的閥門類型和型號時,客戶應正確說明其型號的含義和要求,在供需雙方理解一致的條件下簽訂合同。
4、期貨、訂貨的客戶請先來電函詳細告訴所需的閥門型號、規格、數量以及交貨時間、地點,并按總的30%預定金或全額貨款及時匯入我廠帳戶,其余貨款待發貨前匯入,以便及時安排發貨。
訂單流程:
1、客戶采購清單傳真至021-33872143,或來電咨詢 021-33872141
2、收到客戶采購清單,為客戶提供閥門型號選型與報價(價格清單)。
3、具體商定:交貨期、特殊要求等事宜。
訂貨須知:
1、客戶如對產品有特殊要求,須在訂貨合同中提供以下說明:
|
|||||
|
|||||
2、本廠可根據客戶特定要求配置各類驅動裝置。
|
|||||
3、如由客戶提供確定的閥門類型和型號時,客戶應正確說明其型號的含義和要求,在供需雙方理解一致的條件下簽訂合同。
|
|||||
4、期貨、訂貨的客戶請先來電函詳細告訴所需的閥門型號、規格、數量以及交貨時間、地點,并按總的30%預定金或全額貨款及時匯入我廠賬戶, 其余貨款待發貨前匯入,以便及時安排發貨。
|
售中服務:
守信合同,及時供貨,隨時保持與客戶聯系。
對特殊或復制的產品,我廠安排技術人員對用戶進行產品使用、故障排除
售后服務:
1、“奇高”產品品質期為自出廠起12個月,實行“三包”服務(包退、包換、保修)。
2、產品在使用中我廠定期組織技術、質檢人員進行訪問,征詢用戶對產品質量、使用狀況、改進意見等方面的反饋,
以便進一步提高產品質量。
3、對用戶投訴質量問題,快速作出反應,售后服務人員在24-36小時(省外48小時)趕赴現場。
4、對售后服務,要求用戶填寫服務后的質量反饋信息表,并作出鑒定意見,以便提高“奇高”的服務質量。
聲明 |
|